Hamilton
- 4415 sq. ft.
- Beds: 4
- Bath: 4
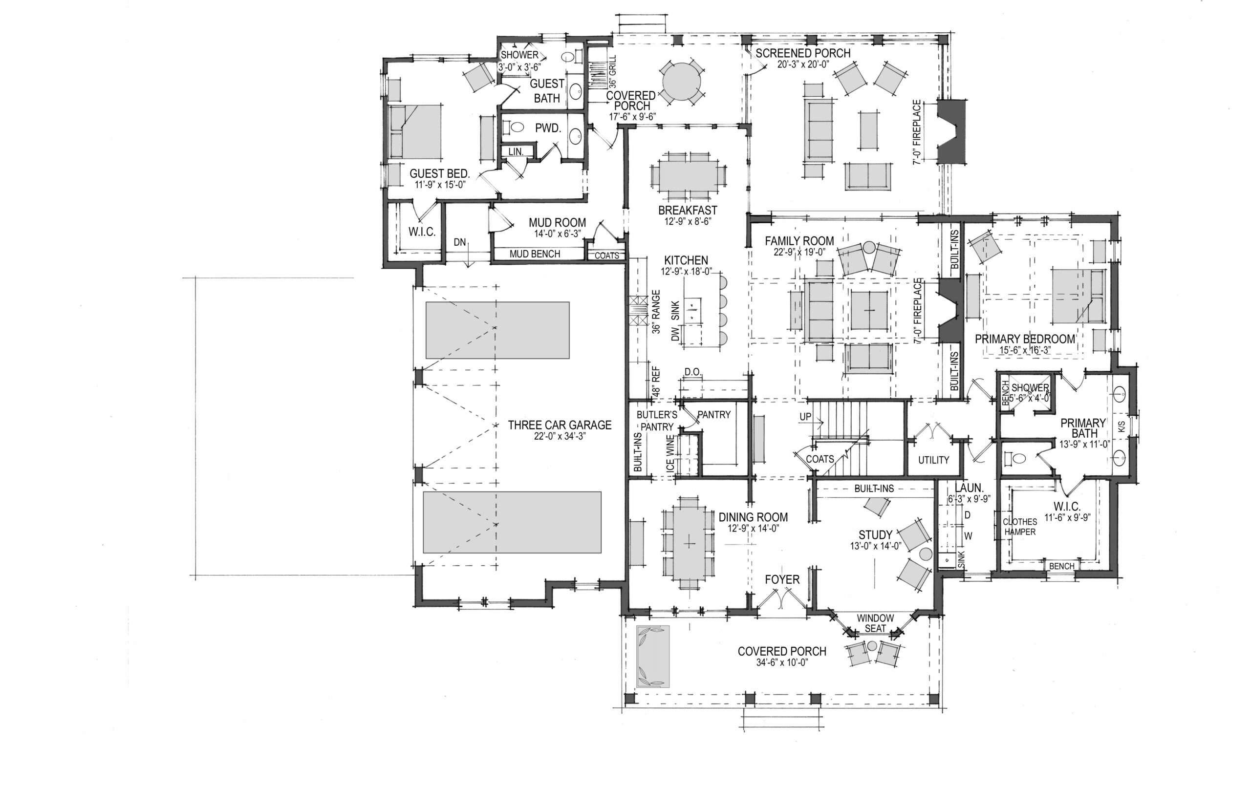
The Hamilton is a stunning four bedroom, four and a half bath rural craftsman home. From the inviting covered front porch, double doors enter into the foyer. The study beside the foyer has a cozy window seat, and the dining room opposite the study leads to the spacious open concept kitchen through a functional butler’s pantry. The large kitchen island holds the sink and dishwasher as well as ample storage. A breakfast nook leads to the grill porch. The family room boasts a fireplace and built ins, and has access to the generous screened porch with another fireplace, a gorgeous place to relax and enjoy the backyard.
Entry from the three-car garage leads to a mud bench, coat closet, and powder room. The guest suite is privately positioned off of the kitchen and has a walk in closet and full bath. The main floor primary suite is conveniently located near the laundry room and beside the family room, and has a large walk in closet and his and hers sinks.
On the second level, two additional bedrooms each have a walk in closet and full bath. A spacious bonus room and ample walk in attic storage finish the upstairs of this practical, functional, and beautiful home.
- 4428 square feet
- 4 Bedrooms, 4 Bathrooms and 1 Half Bath
- Large covered porches
- First floor private guest suite
- Study and formal dining room
- Panoramic views from kitchen, breakfast and family rooms
- Walk-in attic storage
- Plan Name: Hamilton
- Style: Rural Craftsman
- Square Footage: 4415
- Dimensions: 82' w x 74' d
- Bedrooms: 4
- Bath: 4
- Half Bath: 1
- Stories: 2
- Garage Bays: 3
Sailer Design has been honored to be the architect for a number of Southern Living Showcase Homes. Part of this honor means this particular plan is exclusively available through southernliving.com.
We do! You can view all Sailer Design plans sold exclusively on southernliving.com here: Southern Living House Plans →
Or purchase a Printable Brochure here on sailerdesign.com
$15.00 $4,415.00
Yes, we can flip the plan to meet your needs. For example, if the plan has the garage on the right side, but you need the garage on the left, we can reverse it.































