The Oaks
- 5810 sq. ft.
- Beds: 4
- Bath: 4
This four bedroom, four and two half bath traditional home has a two car garage and well-planned details throughout. Entry from the covered porch to the foyer opens into the spacious family room and kitchen area. Off of the foyer, the dining room has butler’s pantry access to the kitchen, complete with wine storage and a sink. Also accessible from the foyer, the private study is home to built ins and a door to the primary suite.
The open concept kitchen features a traditional pantry and a large island that overlooks the breakfast area and family room. In the family room, the fireplace is the focal point between built ins, and sliding doors open to the expansive rear covered porch, complete with multiple seating areas, an additional fireplace, and a grill area. Behind the kitchen, the friends’ entry space contains a mud bench, coat closet, large laundry room, a two car garage, and stairs up to a large future bonus room, playroom, or home theater. The guest room sits in the front of the home off of the kitchen, and has a full private bath and walk in closet. Beyond the family room and powder room, the luxurious primary suite has rear porch access, large separate closets, dual vanities, a soaking tub and walk in shower, and a private toilet.
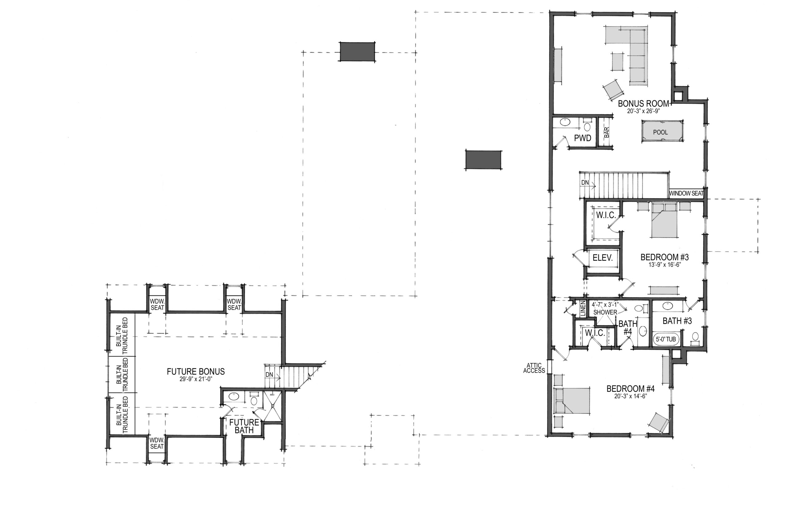
Upstairs, an open bonus room has a bar and ample space for seating and game tables, and two bedrooms each have walk in closets and full baths. A powder room and linen closet complete the second level of this plan.
- 5810 square feet
- 4 Bedrooms, 4 Bathrooms and 2 Half Baths
- Optional expandable space 784 square feet
- Classic Georgian style
- 10′ first floor ceiling heights with 11′ Family Room, Breakfast and Kitchen, 9′ second floor ceiling heights
- Rear covered porch with skylights
- Large Bonus Room with wet bar
- Plan Name: The Oaks
- Style: Georgian
- Square Footage: 5810
- Dimensions: 79' d x 114' w
- Bedrooms: 4
- Bath: 4
- Half Bath: 2
- Stories: 2
- Garage Bays: 2
Sailer Design has been honored to be the architect for a number of Southern Living Showcase Homes. Part of this honor means this particular plan is exclusively available through southernliving.com.
We do! You can view all Sailer Design plans sold exclusively on southernliving.com here: Southern Living House Plans →
Or purchase a Printable Brochure here on sailerdesign.com
$15.00 $5,810.00
Yes, we can flip the plan to meet your needs. For example, if the plan has the garage on the right side, but you need the garage on the left, we can reverse it.








































































